
装修的第一步往往是进行平面规划。这一步决定了未来你家的生活轨迹以及便利程度,因此,需要多花些时间考虑才是。
虽然我们的建筑格局基本固定,可操作性不强(承重墙多),但是在可变空间内如何利用面积,仍值得我们思考。
今天我们带来的一例,就是根据屋主需要及公寓现状来进行规划的过程。
共提供了3版,在这过程当中,你可以看到设计师是如何针对问题一点点细化并优化方案的。
这位业主, 需求为 3+1 房。买的房子是四房的格局, 改起来不很难。
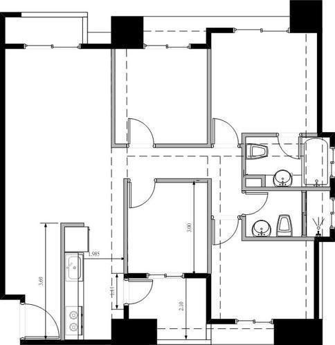
原格局如下:
看起来很一般, 格局方正. 业主的主要需求如下:
1. 主卧房想要有更衣室;
2. 一间房间做书房;
3. 维持 1+2 : 主卧 + 2 间卧室 的格局。
▲ 原始平面图
分析
首先, 我们看一下怎么改,
▲ 分析
1. 玄关偏深:玄关深,可是餐桌却偏走道太过去了,等一下我们要想想怎么解决。
2. 更衣室的位置有两个选择 :(1) 的位置还ok; (2) 就不太好,这样会吃到右下角的进入空间,需要牺牲中间下方的房间.. 不好。
3. 主卧卫浴门对床
第一版
我们先以更衣室位置1来规划。
▲ 第一版
上中房间(客厅旁)设定为书房, 将中心挪一些给主卧当作更衣室。
中间有个窗户,须分给两边使用,这个窗户横拉式须改为外推式,两间房中间以书架与衣橱做为隔间墙。
这个变化比较尴尬。更衣室空间不太好,虽然有规划化妆台,但是更衣室里面只能放折叠的衣服...很浪费空间。
而且, 玄关偏深的问题没有解决。
第二版
先解决主卧卫浴对床的问题。
▲ 第二版
取消掉浴缸,将主卧卫浴改为二进式,一进洗手台, 二进盥洗室。
将主卧的卫浴改为 L 型,厕所空间变大的,想像上厕所时,可以很悠闲的感觉,还不错吧?
有人可能会问,那公用卫浴不就很小了?而且原本对外窗的优势就不见了。是的,没错,这个问题后面我们来解决。
第三版
这个版本, 算是最终的版本了。
▲ 第三版平面图
1. 书房改到中下房间(厨房旁)。将厨房的冰箱, 摆到对面去。外面的玄关自然变短,可以摆下170x85cm的餐桌。
2. 厨房变小,但是我们将书房与餐厅中间的墙面取消后,变出了一道柜子,一边是电器柜,一边是书柜。
3. 业主书多, 所以再将靠下的窗户墙, 设计书柜(中断镂空, 便于采光)
关于公用浴室如何采光
▲ 公用浴室立面图
当然是利用玻璃砖啦,记得将墙面保留一段空间, 未来施工时,可以搭配玻璃砖来提供必要的采光, 虽然差了点,但是总比没有的要好。
平面规划往往没有最优可言,只有是否最适合屋主生活可言。而且往往,平面规划都需要平衡屋主的各项需求与美观。
取舍,到什么时候都是个很重要的选择题。
No comments:
Post a Comment